NOTICIAS
Las propiedades de Javier Duarte de Ochoa [FOTOS]
Mientras se resuelve el proceso de extradición del político mexicano que se encuentra preso en Guatemala, los escándalos de corrupción en el estado de Veracruz durante el gobierno de Javier Duarte de Ochoa no se detienen. En su audiencia pública llevada a cabo el 19 de abril de 2017 en el tribunal quinto de sentencia penal del país centroamericano para notificarle los motivos por los que fue arrestado en el hotel Riviera Atitlán en el municipio de Panajachel en Guatemala, se le dio lectura detallada de todas las operaciones que lo colocan como principal ejecutor y autor intelectual de la red que lo ayudó a desviar recursos públicos y a desfalcar por miles de millones de pesos al estado que gobernó de 2010 a 2016.
VER: El testaferro de Javier Duarte, Moises Mansur, tuvo un hijo con Ana Gaby Peralta
Uno de los principales operadores de Javier Duarte de Ochoa es Moises Mansur, quien dejó como heredero en su testamento a Duarte de Ochoa, además de poseer varias propiedades en la Ciudad de México y otros estados de la República, Moises tiene departamentos en Miami y Madrid. A continuación presentamos por lo menos cinco propiedades que pertenecen a esta investigación y de las cuales se integran a por lo menos una veintena de bienes inmuebles en Miami, Veracruz, España y México.
VER: El árbol genealógico de Javier Duarte de Ochoa
Nuevas denuncias presentadas por el Órgano de Fiscalización Superior del estado se detalla que Javier Duarte desvió 38 mil pesos por minuto en 2015, o sea, 54 millones de pesos diarios:
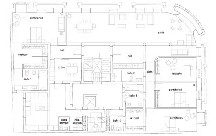
1) Una departamento de 480 metros cuadrados en el número 71 de la avenida Campos Elíseos en la Ciudad de México que se compró en mayo de 2006 por 648 mil dólares.

(Foto: Google Maps)
2) Una vivienda de 411 metros cuadrados en el número 10 de la calle Chile en la Ciudad de México comprada en enero de 2007 por 555,100 dólares.

(Foto: Google Maps)
3) Una vivienda de 403 metros cuadrados en el número 24 de la calle Alfonso XII, frente al Parque de El Retiro en Madrid España en 2014, cuando Duarte ya era gobernador de Veracruz, por 4,2 millones de dólares a través de la sociedad patrimonial Worfolk Solutions SL.

(Foto: Google Maps)

(Foto: Google Maps)
4) Un rancho de 105 hectáreas denominado La Macedonia en Cosamaloapan.
5) Una finca de 480 metros denominada La Macaya en Tres Valles. Por ambas propiedades se abonó 106,400 dólares.
6) Un rancho de más de mil metros cuadrados en «Las Mesas» Valle de Bravo en el Estado de México, por más de 600 millones de pesos.

(Foto: Google Maps)